fbpx Skip to content

CA4 Axedale-Kimbolton Road

Eppalock VIC 3551

Contact Agent

Incredibly Picturesque Allotment on Campaspe River

This is an exceptional property in all regards. Occupying an elevated position along the Campaspe River, and just minutes from Lake Eppalock, this approx. 60 acre block of land represents your opportunity to join an elite neighbourhood where you can enjoy a relaxed and productive rural lifestyle without sacrifice.

An elevated and reasonably level portion of land toward the rear of the block soaks up panoramic rural views of Mt Alexander and the surrounding ranges and, of course, the river winding its way through the countryside. It would make a remarkable home site (STCA) – a true combination of privacy and spectacle.

Power lines pass the front of the property, and while there is an opening to access the property from the bitumen road you will need to construct a track to your preferred home site and to the river. You will note that part of the boundaries are formed by the original stone fences, which date back over 150 years. A portion of the remaining boundaries have been partly surveyed and pegged for your convenience. The productive volcanic soils support a mixture of improved pasture and native grasses suitable for the grazing and fattening of livestock.

The property is zoned Rural Conservation, and would be suitable for building a home and shedding subject to planning approvals from the City of Greater Bendigo. Located only 25km from the Bendigo CBD, 2km from Axedale, and the Lake Eppalock spillway is just over 2km from the property.

A copy of the Due Diligence checklist can be found at https://www.consumer.vic.gov.au/duediligencechecklist

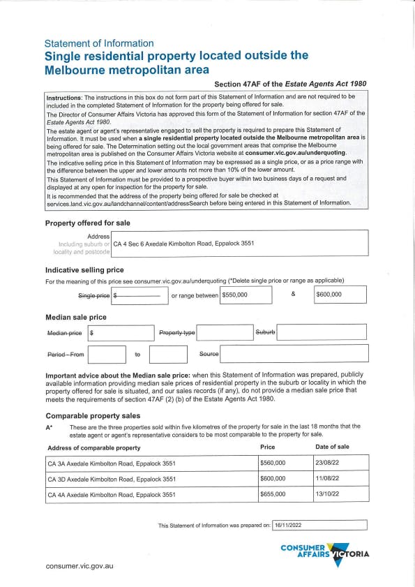
Statement of Information

Can I afford CA4 Axedale-Kimbolton Road?

Whether you’re a first-time buyer, looking for your next home, or considering upgrading or downgrading, Elders Finance can unlock the doors to the right finance option for you and get you into the home of your dreams.

Calculators

Elders Real Estate Bendigo

Enquire about CA4 Axedale-Kimbolton Road, Eppalock, VIC, 3551

Property guides and resources

Finding a Pet Friendly Rental in 2026: What Renters Need to Know

For many Australians, pets are no longer simply animals that live at…
Read more

The 2026 Budget and Regional Commercial Property: Where The Real Shift Lands

The 2026 Federal Budget has been read, fairly, as a residential housing…
Read more

Federal Budget 2026–27: What It Means for Property Owners, Renters and Investors

The 2026–27 Federal Budget introduces a range of changes to Australia’s property…
Read more