fbpx Skip to content

12 Daisy Street

Fairy Meadow NSW 2519

  • 9 Parks
Expressions Of Interest

Two-Level Commercial / Retail Building – Prime Fairy Meadow Location

For Lease | Inspections by Private Appointment

Elders Real Estate Wollongong is proud to present an exceptional leasing opportunity in the heart of the Fairy Meadow CBD.

This modern, versatile two-level commercial building offers outstanding exposure, premium facilities, and the rare chance to occupy the long-established and iconic "FUJIYAMA" Teppanyaki Restaurant-one of the only venues of its kind in the region.

Perfect for restaurateurs or investors seeking a fully equipped, high-profile hospitality space, with flexibility to suit a wide range of other commercial uses.

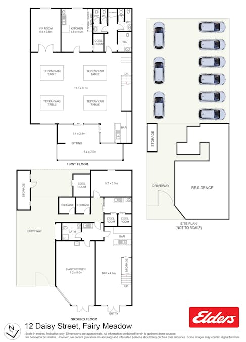
Ground Floor
• High-profile street frontage with direct access
• Existing reception/seating area and bar

First Floor
• Large open-plan dining room previously fitted for Chinese/Japanese Teppanyaki
• Seating capacity for approx. 100 guests + private dining room
• Fully equipped bar and outdoor terrace
• Commercial-grade kitchen
• Air-conditioned throughout
• Disability lift access
• Male & female amenities
• Walk-in cool room
• Multiple storage areas

Additional Features
• On-site parking
• Solar power
• Fully fenced property
• Highly visible and easily accessible location

Located in the thriving Fairy Meadow commercial precinct. Moments from beaches, schools, shops, cafés, Wollongong CBD, University of Wollongong, Innovation Campus, public and private hospitals. Sydney CBD and Airport approx. 1 hour away.

A rare opportunity not to be missed. Contact us today to arrange your private inspection.

Features

General Features

  • Commercial Type: Retail
  • Building Area: 300sqm
  • Car Spaces: 9

Elders Real Estate Wollongong

Enquire about 12 Daisy Street, Fairy Meadow, NSW, 2519

Property guides and resources

The 2026 Budget and Regional Commercial Property: Where The Real Shift Lands

The 2026 Federal Budget has been read, fairly, as a residential housing…
Read more

Federal Budget 2026–27: What It Means for Property Owners, Renters and Investors

The 2026–27 Federal Budget introduces a range of changes to Australia’s property…
Read more

Spaces That Bring the Family Together

There’s something special about the spaces where life naturally gathers. The kitchen…
Read more