fbpx Skip to content
  • Industrial/Warehouse
  • For Lease
  • Print

6/14 Kennedy Drive

Cambridge TAS 7170

Contact agent

Versatile Warehouse & Office Facility Cambridge-Available Now

Elders Commercial is pleased to offer for lease this well-configured warehouse and office facility located in the highly sought-after Cambridge industrial precinct.

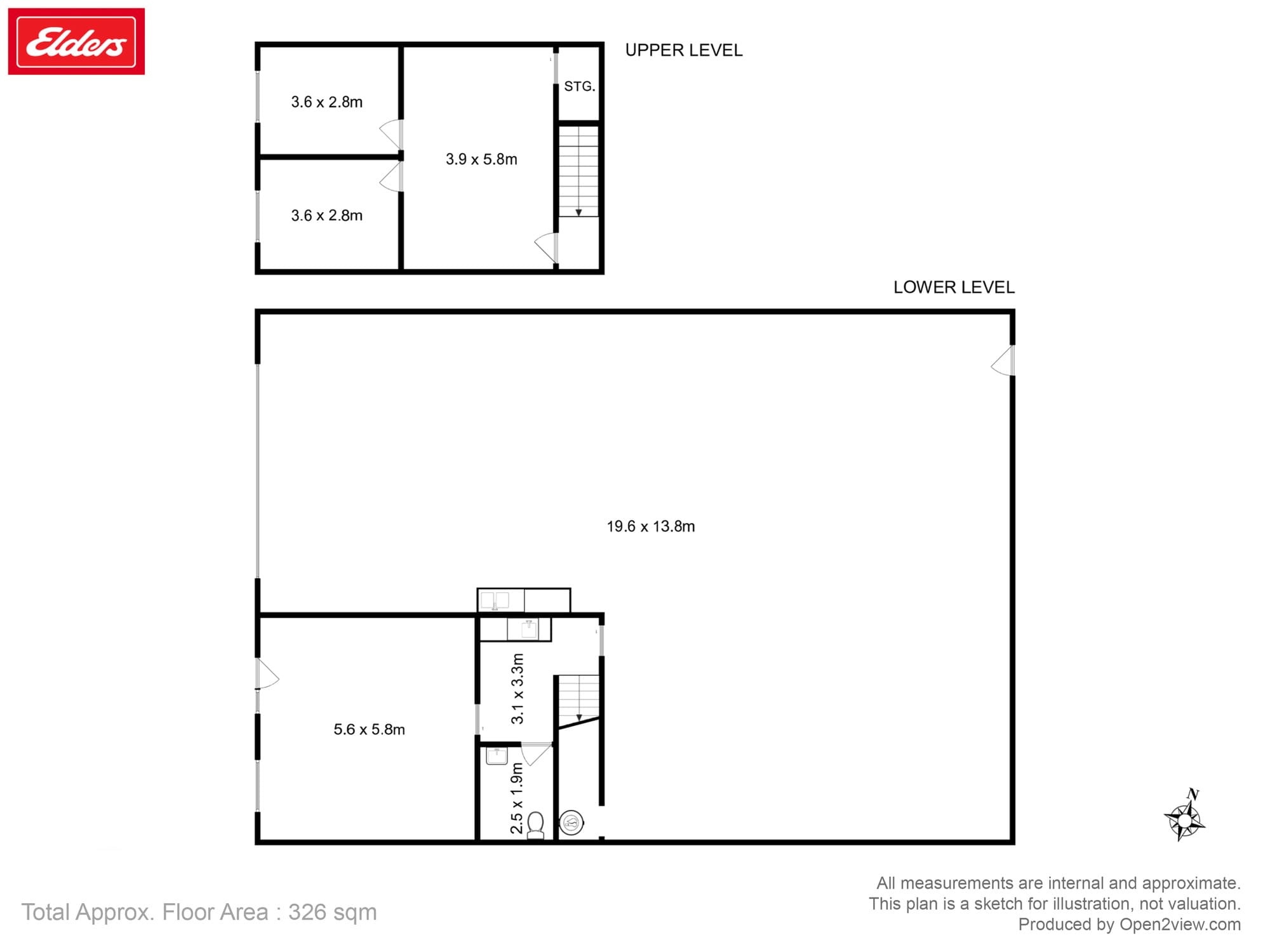
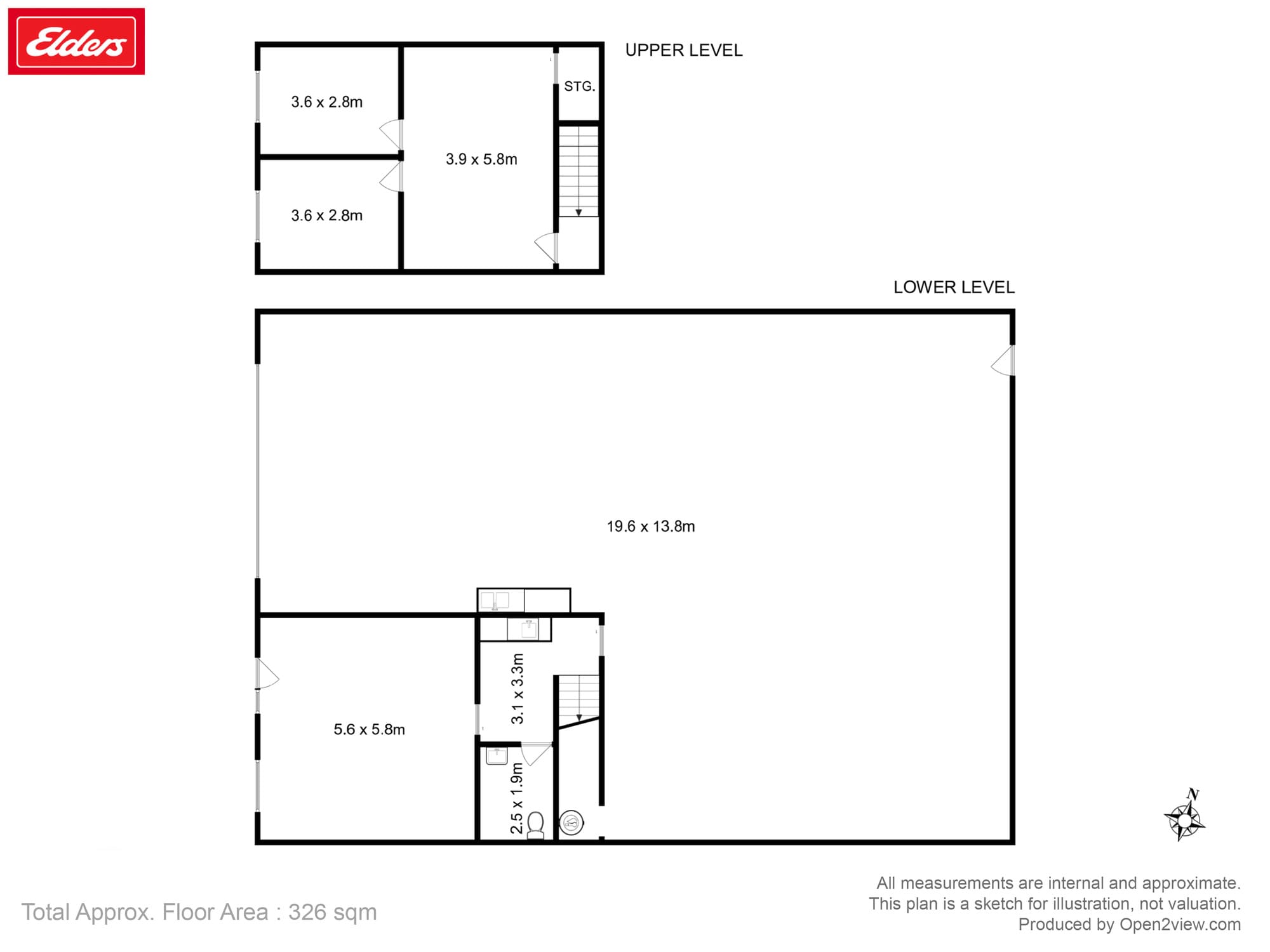
Comprising a floor area of 326 sqm*, this versatile property features a high-clearance warehouse with an internal clearance of 4.6 metres* and 4.4 metre* wide electric roller door. The space also includes a reception area, office, kitchenette, staff amenities, and two onsite car parks*. Zoned ‘Light Industrial’, the property is suited to a range of industrial, service, and trade-based operations.

Key features include:
• 326 sqm* total building area
• Warehouse with 4.6 m* internal clearance, roller door access
• Ground-level reception with excellent natural light
• Staff amenities, kitchenette and office space
• Onsite car parking for two* vehicles
• Zoned 'Light Industrial’ offering flexibility for a variety of uses
• Prominent Kennedy Drive frontage with high visibility

The property is highly accessible being situated just off the Tasman Highway and occupies a prominent position on Kennedy Drive, being located at the front of the industrial development.

For more information or to arrange an inspection, please contact Will Ellis or George Burbury.

*Approx.

Features

General Features

  • Commercial Type: Industrial/Warehouse
  • Building Area: 326sqm
  • Zoning: Light Industrial

Elders Real Estate Hobart

Enquire about 6/14 Kennedy Drive, Cambridge, TAS, 7170

Property guides and resources

Finding a Pet Friendly Rental in 2026: What Renters Need to Know

For many Australians, pets are no longer simply animals that live at…
Read more

The 2026 Budget and Regional Commercial Property: Where The Real Shift Lands

The 2026 Federal Budget has been read, fairly, as a residential housing…
Read more

Federal Budget 2026–27: What It Means for Property Owners, Renters and Investors

The 2026–27 Federal Budget introduces a range of changes to Australia’s property…
Read more