fbpx Skip to content
  • Industrial/Warehouse
  • Leased
  • Print

91 Lampton Avenue

Derwent Park TAS 7009

  • 17 Parks
Contact Agent

Clear Span Warehouse & Office with On-Site Parking in Industrial Precinct

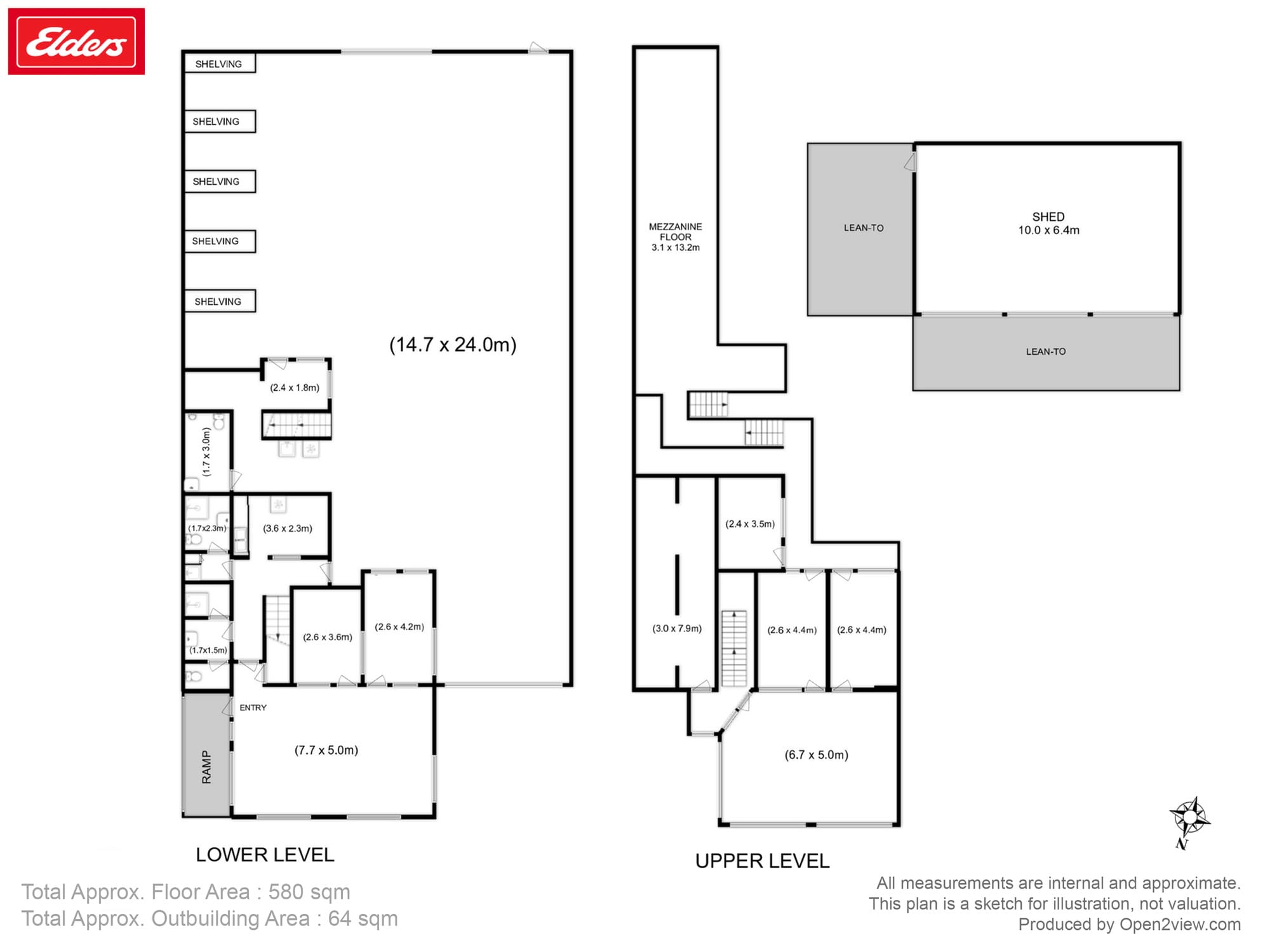
Elders Commercial is pleased to offer for lease 91 Lampton Avenue, Derwent Park, a versatile light industrial facility positioned within Hobart’s tightly held Derwent Park precinct.

The property provides a total building area of approximately 644 sqm* on a level 1,148 sqm* Light Industrial zoned site. It comprises of a high-clearance rear warehouse, offices, reception area, boardroom, staff amenities and mezzanine storage. The configuration provides excellent flexibility for a range of industrial, trade retail, storage or service-based uses^.

Externally, the site offers valuable front and rear on-site parking for approximately 17 vehicles, together with a rear yard area and roller door access to the warehouse, supporting efficient loading and operational flow.

Located approximately 5km* north of Hobart’s CBD, the property benefits from immediate connectivity to the Brooker Highway, Main Road and key arterial routes.

Key Highlights
• 644 sqm* light industrial facility on 1,148 sqm* site
• High-clearance warehouse with roller door access
• Office, boardroom and amenities across two levels
• 17* on-site car parks (front and rear)
• Light Industrial zoning allowing broad use flexibility ^
• Strategic Derwent Park location with excellent arterial access
• Available now

Opportunities of this scale and functionality within Derwent Park are limited. This represents an excellent opportunity to secure a well-located industrial premises in a tightly held precinct.

For further information or to arrange an inspection, please contact George Burbury.

*Approximate
^STCA

Features

General Features

  • Commercial Type: Industrial/Warehouse
  • Building Area: 644sqm
  • Car Spaces: 17

Elders Real Estate Hobart

Enquire about 91 Lampton Avenue, Derwent Park, TAS, 7009

Property guides and resources

Finding a Pet Friendly Rental in 2026: What Renters Need to Know

For many Australians, pets are no longer simply animals that live at…
Read more

The 2026 Budget and Regional Commercial Property: Where The Real Shift Lands

The 2026 Federal Budget has been read, fairly, as a residential housing…
Read more

Federal Budget 2026–27: What It Means for Property Owners, Renters and Investors

The 2026–27 Federal Budget introduces a range of changes to Australia’s property…
Read more