fbpx Skip to content

Part 287 Main Road

Glenorchy TAS 7010

Contact Agent

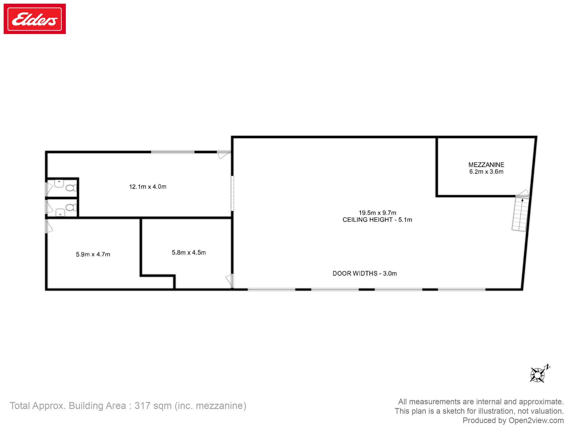
Fully-Equipped Workshop with 4-Hoist Capability & Amenities

Elders Commercial is pleased to present a new automotive servicing facility positioned in the heart of Glenorchy's bustling commercial precinct.

Offering 317 sqm*, this tenancy has been thoughtfully designed to accommodate up to four hoists, with potential for integrated servicing equipment to be included as part of the lease. Amenities including a lunchroom and bathroom provide a functional and comfortable environment for staff. Car parking is also available for both customers and employees.

Strategically located on Glenorchy’s Main Road, the property benefits from outstanding exposure and ease of access, providing an ideal premise for automotive service operators seeking to capitalise on a well-established trade catchment.

Key Features:

• 317 sqm* building area
• Potential to include 4 hoists and fixed servicing equipment in lease
• Lunchroom and bathroom amenity
• Car parking available
• Prime position within a major commercial precinct

For more information or to arrange an inspection, please contact George Burbury.

*Approx

Features

General Features

  • Land Area: 317sqm
  • Commercial Type: Industrial/Warehouse
  • Building Area: 317sqm
  • Zoning: Commercial

Elders Real Estate Hobart

Enquire about Part 287 Main Road, Glenorchy, TAS, 7010

Property guides and resources

Elders Real Estate Continues Its Give It Christmas Appeal for the Third Year

As the festive season approaches, Elders Real Estate is once again rallying…
Read more

Smart Home Automation Upgrades to Beat the Heat

As we begin to head into the summer months, homebuyers and homeowners…
Read more

Modern Kitchen and Mudroom Makeover on a Budget

You don’t need a full renovation (or a designer’s budget) to breathe…
Read more