fbpx Skip to content
  • Industrial/Warehouse
  • Leased
  • Print

Unit 2 / 9 Farley Street

Glenorchy TAS 7010

  • 4 Parks
Contact agent

Practical Industrial Unit with Dual Access & Mezzanine Storage

Elders Commercial is pleased to offer Unit 2, 9 Farley Street, Glenorchy, a well‑presented and highly functional industrial warehouse positioned just off Main Road in one of the northern suburbs’ most established commercial precincts.

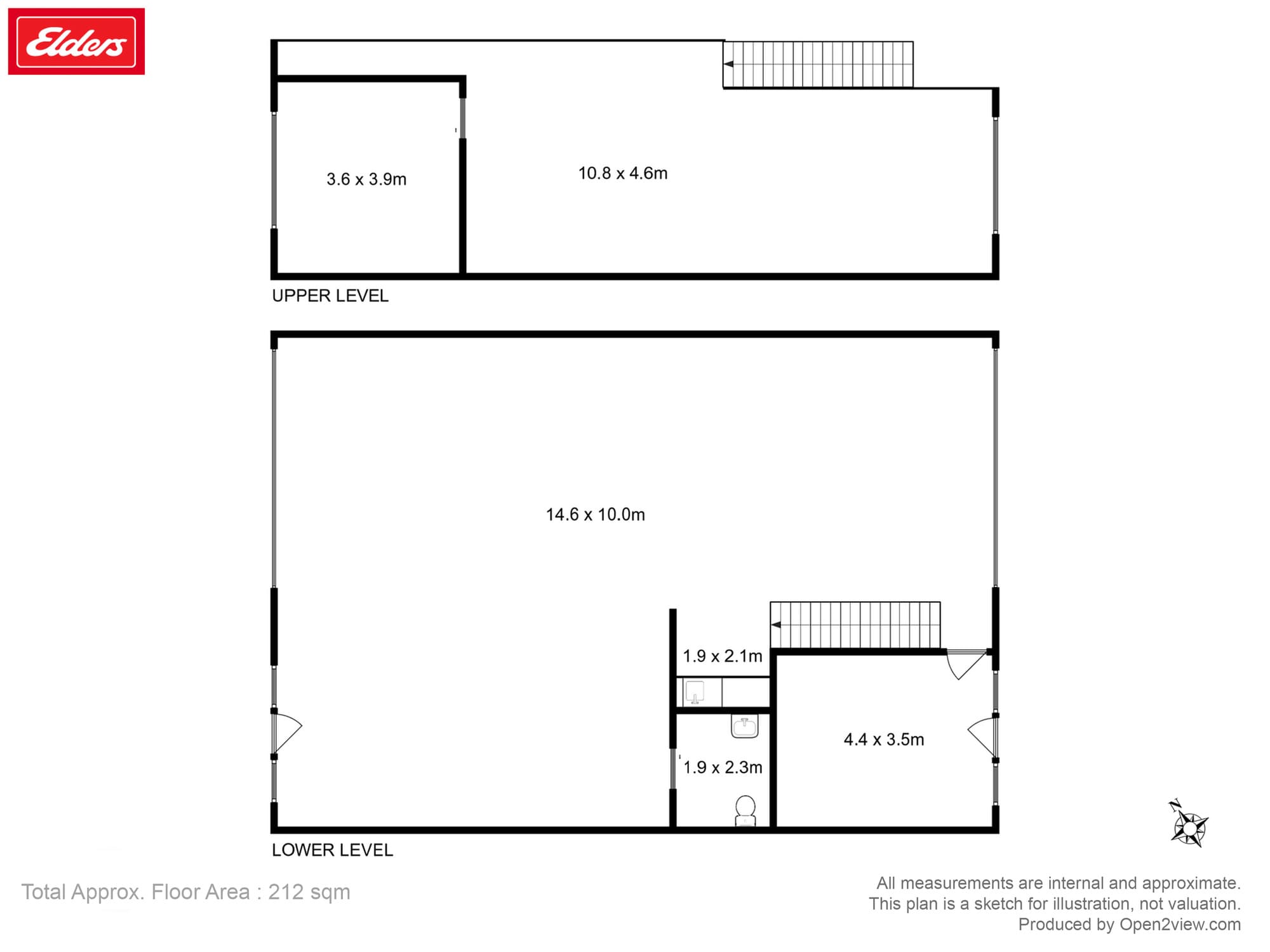
The property provides approximately 212 m² of building area, including a practical mezzanine, and benefits from excellent accessibility via dual automatic roller doors at both the front and rear of the building. The rear yard is fully fenced, offering strong security and offers additional hardstand space and onsite parking.

Internally, the warehouse features clear span space with a minimum clearance of around 5.5 metres, along with a small office and toilet amenities, making it suitable for a wide range of industrial, trade, and storage uses.

Surrounded by major retailers and enjoying easy access to major arterial routes, the property offers a cost effective entry into a popular location.

For further information or to arrange an inspection please contact Liam Coyle.

Features

General Features

  • Commercial Type: Industrial/Warehouse
  • Building Area: 212sqm
  • Zoning: Light Industrial
  • Car Spaces: 4

Elders Real Estate Hobart

Enquire about Unit 2/9 Farley Street, Glenorchy, TAS, 7010

Property guides and resources

Simple Ways to Refresh Your Home for the Cooler Months

There’s something about this time of year that invites a reset. After…
Read more

Regional vs Capital: Where Property Returns Are Stronger in 2026

It’s no secret that the Australian property market is no longer moving…
Read more

Q1 2026 Property Market Review: Where Australia Stands and What Comes Next

As the first quarter of 2026 wraps up, the Australian property market…
Read more