fbpx Skip to content

Whole or Part Buildi / 250 Liverpool Street

Hobart TAS 7000

  • 4 Parks
$137,000 anually

High-Profile Office Building with Dual-Level Flexibility

A rare opportunity to lease a high-profile office building, conveniently located in Hobart’s CBD on the corner of Liverpool and Barrack Streets.

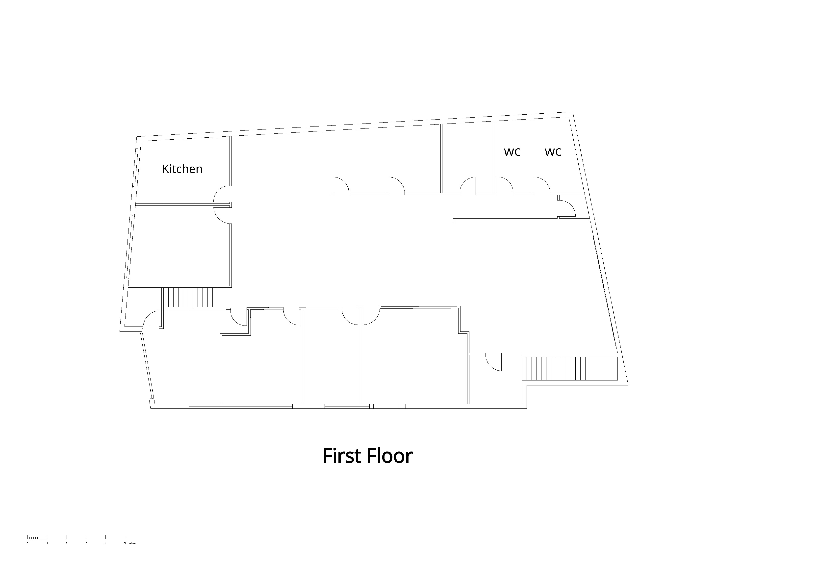
The property offers two levels of air-conditioned office accommodation with modern fit-out and flexible leasing options.
The ground floor (168 sqm*) features level access, a DDA-compliant toilet, and direct street frontage. The first floor (307 sqm*) boasts abundant natural light, multiple offices, and a large open-plan central area. Each floor is serviced with their own amenities and kitchen.

The property is complimented with secure garage parking for approximately 4 cars at an additional cost of $275 per bay per month.
The property is available as a whole or by individual level, making it ideal for a range of occupiers. Prominent signage potential^ enhances visibility in this strategic CBD location.

Available now.
*Approx
^STCA

Features

General Features

  • Commercial Type: Offices
  • Building Area: 475sqm
  • Zoning: Central Business
  • Car Spaces: 4

Elders Real Estate Hobart

Enquire about Whole or Part Buildi/250 Liverpool Street, Hobart, TAS, 7000

Property guides and resources

Halloween at Home: Ideas for a Fun, Family-Friendly Fright Night

Once upon a time, Halloween in Australia was more of a passing…
Read more

Elders Real Estate Continues Its Give It Christmas Appeal for the Third Year

As the festive season approaches, Elders Real Estate is once again rallying…
Read more

Smart Home Automation Upgrades to Beat the Heat

As we begin to head into the summer months, homebuyers and homeowners…
Read more