fbpx Skip to content
  • Medical/Consulting
  • For Sale
  • Print

124 Channel Highway

Taroona TAS 7053

Contact Agent

Versatile building offering accessibility & ample parking

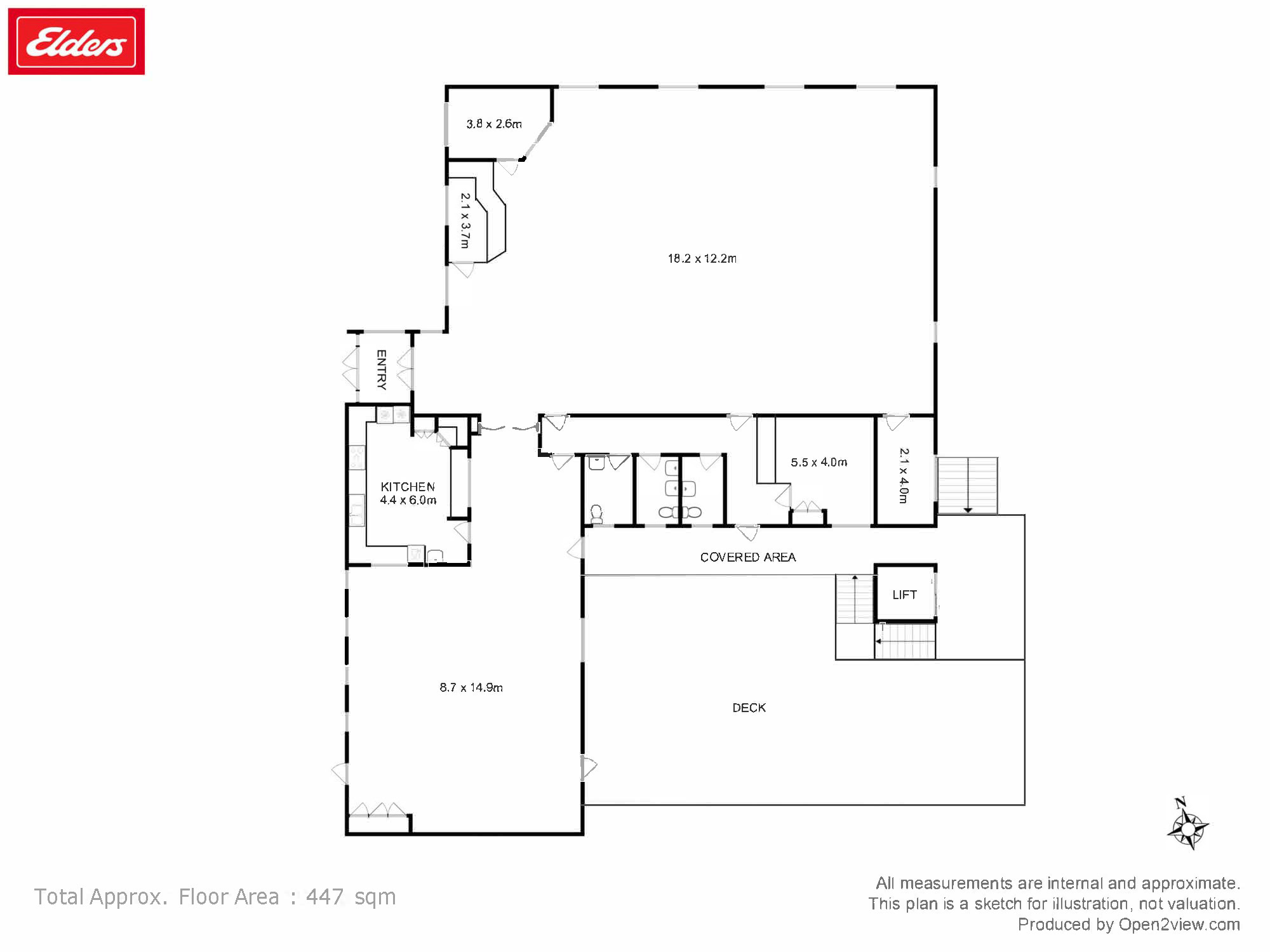
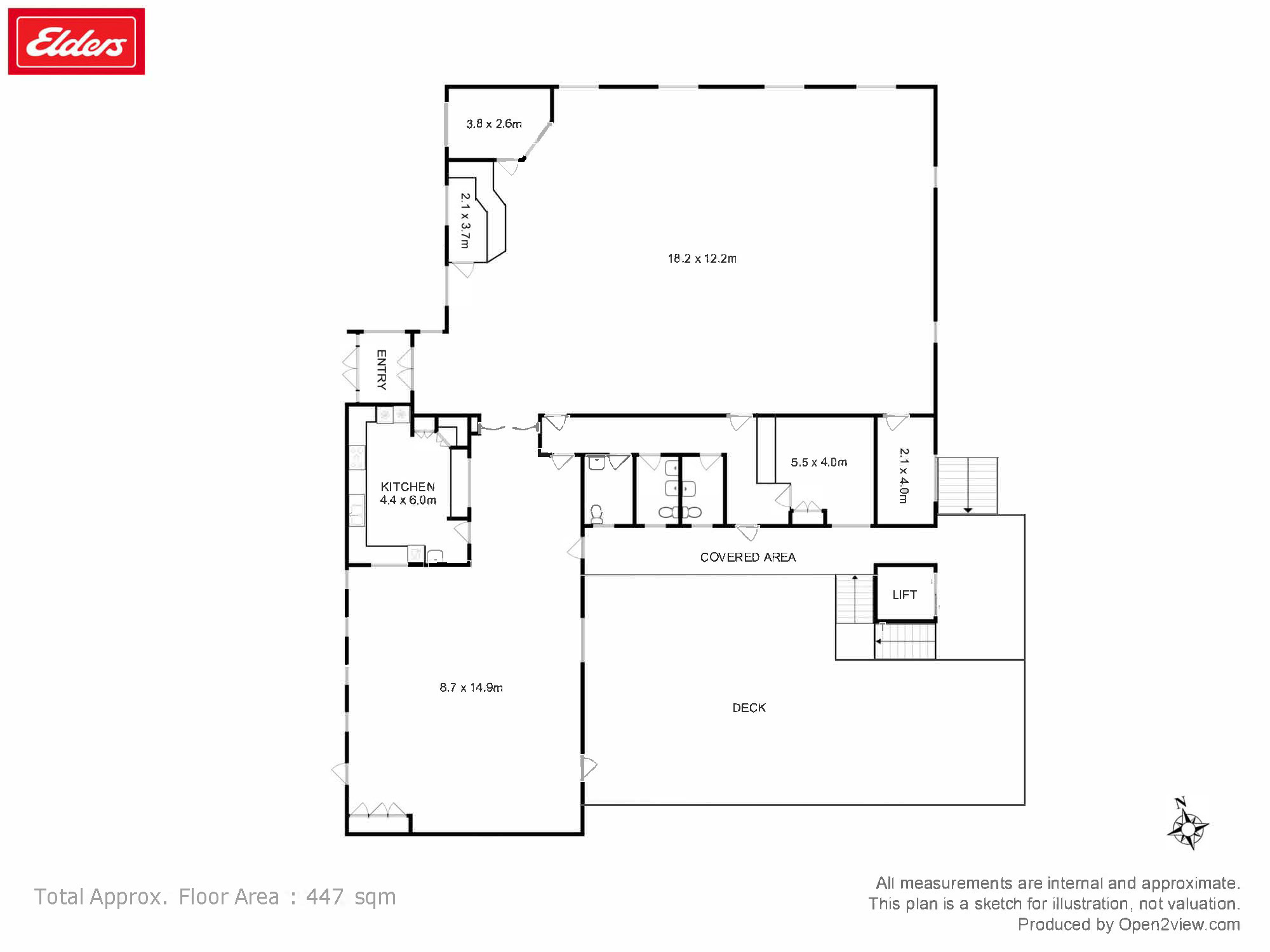
124 Channel Highway offers a rare opportunity in Taroona’s tightly held corridor. Recently upgraded with a new lift, resurfaced car park, and expansive 145 sqm* deck, the property has level access and is being offered with vacant possession.

The property location and design is suited to medical and professional use, and the property is currently progressing through a planning amendment process which if successful will permit these uses and more.

The property carries a proposed medical floorplan suiting general practice and consulting, with a quoted fitout cost of $700,000 plus GST*, with a $60,000 plus GST PC allowance for joinery.

Positioned on a high-exposure arterial route with 31* on-site car parks, this versatile asset combines strong location fundamentals with exceptional flexibility, making it ideal for owner-occupiers seeking growth in a premium Hobart suburb.

Key features:

• Prime Location – Situated in Taroona, 9 kms* from Hobart CBD, close to schools, beaches, and Kingston Plaza.

• Modern Accessibility – Newly installed lift ensures convenient access, enhancing accessibility for all users.

• Outdoor Amenity – Large 145 sqm* deck offers versatile space for outdoor activities or client engagement.

• Generous Parking – 31* on-site car parks, a rare feature in this location.

• Upgraded Infrastructure – Car park resurfacing improves functionality and presentation, supporting high traffic and easy access.

• Quality Building Features – Two spacious halls, offices, reception, kitchen, and amenities within a solid, well-maintained structure.

• Expanded Use Potential – If approved, the planning scheme amendment would allow expanded uses in the Low-Density Residential Zone, including medical, business and professional services, food services, general retail and hire, community meeting and entertainment, and educational and occasional care.

For sale by offer.

For more information, contact George Burbury or James Black.

*Approx

Features

General Features

  • Commercial Type: Medical/Consulting
  • Building Area: 447sqm
  • Zoning: Low Density Residential

Can I afford 124 Channel Highway?

Whether you’re a first-time buyer, looking for your next home, or considering upgrading or downgrading, Elders Finance can unlock the doors to the right finance option for you and get you into the home of your dreams.

Calculators

Elders Real Estate Hobart

Enquire about 124 Channel Highway, Taroona, TAS, 7053

Property guides and resources

Regional vs Capital: Where Property Returns Are Stronger in 2026

It’s no secret that the Australian property market is no longer moving…
Read more

Q1 2026 Property Market Review: Where Australia Stands and What Comes Next

As the first quarter of 2026 wraps up, the Australian property market…
Read more

Why the Market Reawakens After Easter

Every year, the Australian property market seems to follow a familiar rhythm.…
Read more