fbpx Skip to content

96 - 98 Waterloo Road

Yarragon VIC 3823

Contact Agent

WAREHOUSE COMPLEX, PROMINENT HIGHWAY LOCATION.

Investment for growth or landbank opportunity.
Location is key, take note of these excellent warehouse units on offer fully leased, with high visibility on the Princes Highway. Well-built heavy duty steel construction, on a fully concreted site and easy b-double front and rear access. Ideal buildings for subdividing into smaller units.
With industrial/commercial land and warehousing in ever increasing demand and in short supply in the south east region, these prominent, quality units provide opportunities to expand or invest in a strategic growth location.
On offer is:
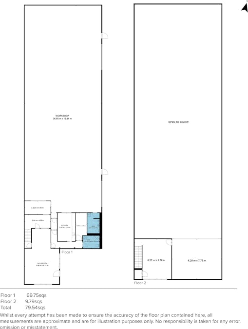
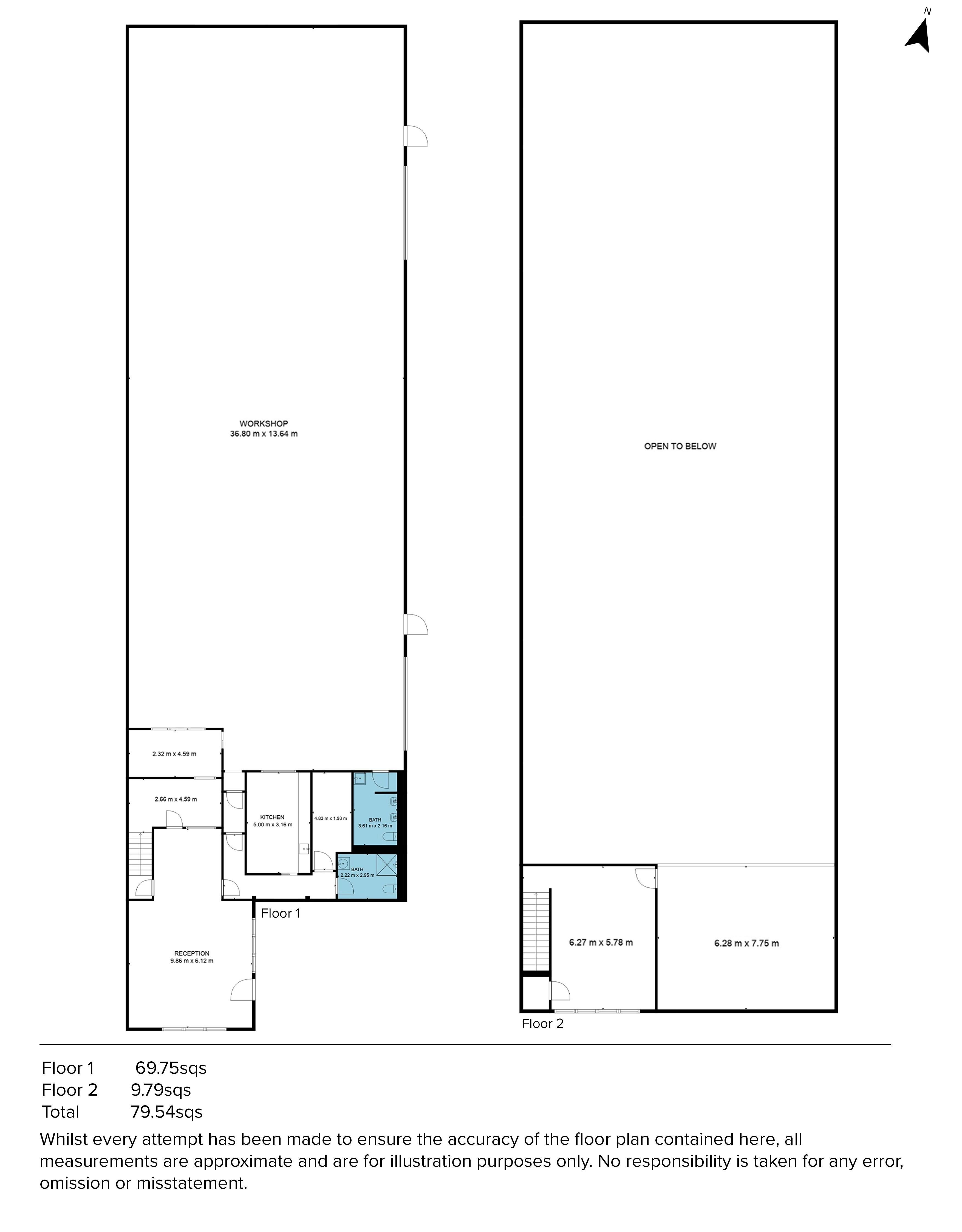
- Two warehouses - each 640 sqm approx. plus offices, separate titles, land size 2850 sqm,
- "Mirror image" buildings, high clearance, HD steel construction, motorized roller doors,
- Ideal strength and structure to repurpose/subdivide into smaller leasable units,
- Significant M1 highway exposure - with easy B-double dual access, security gated,
- Central access loading bay, could be roofed over for additional storage, all weather cover,
- Excellent, spacious offices inc. boardroom and amenities ample parking, 3 phase power,
- Offers an ideal passive investment opportunity being fully leased..


Inspections strictly by appointment.


Disclaimer: Whilst every care has been taken in preparing the above information, it is to be used as a guide only. Please refer to the appropriate legal documentation to complete your due diligence.

Statement of Information

Features

General Features

  • Land Area: 2,850sqm
  • Commercial Type: Industrial/Warehouse
  • Building Area: 640sqm

Can I afford 96 - 98 Waterloo Road?

Whether you’re a first-time buyer, looking for your next home, or considering upgrading or downgrading, Elders Finance can unlock the doors to the right finance option for you and get you into the home of your dreams.

Calculators

Elders Real Estate Delaney Group

Enquire about 96 - 98 Waterloo Road, Yarragon, VIC, 3823

Property guides and resources

The Easter Slowdown: How to Recharge Your Home and Mind

There’s something about Easter that feels different. It doesn’t carry the same…
Read more

From Growth to Income: Why Australian Investors Are Turning to Regional Commercial Property

For decades, Australian property investment has been built on a simple idea:…
Read more

How AI is Changing Home Renovation

Not long ago, home inspiration meant flipping through magazines, saving Instagram posts,…
Read more