fbpx Skip to content

Ground / 152 Macquarie Street

Hobart TAS 7000

  • 2 Parks
For Sale by Expressions of Interest

High-Exposure Ground Floor, Quality Fit-Out, Vacant Possession.

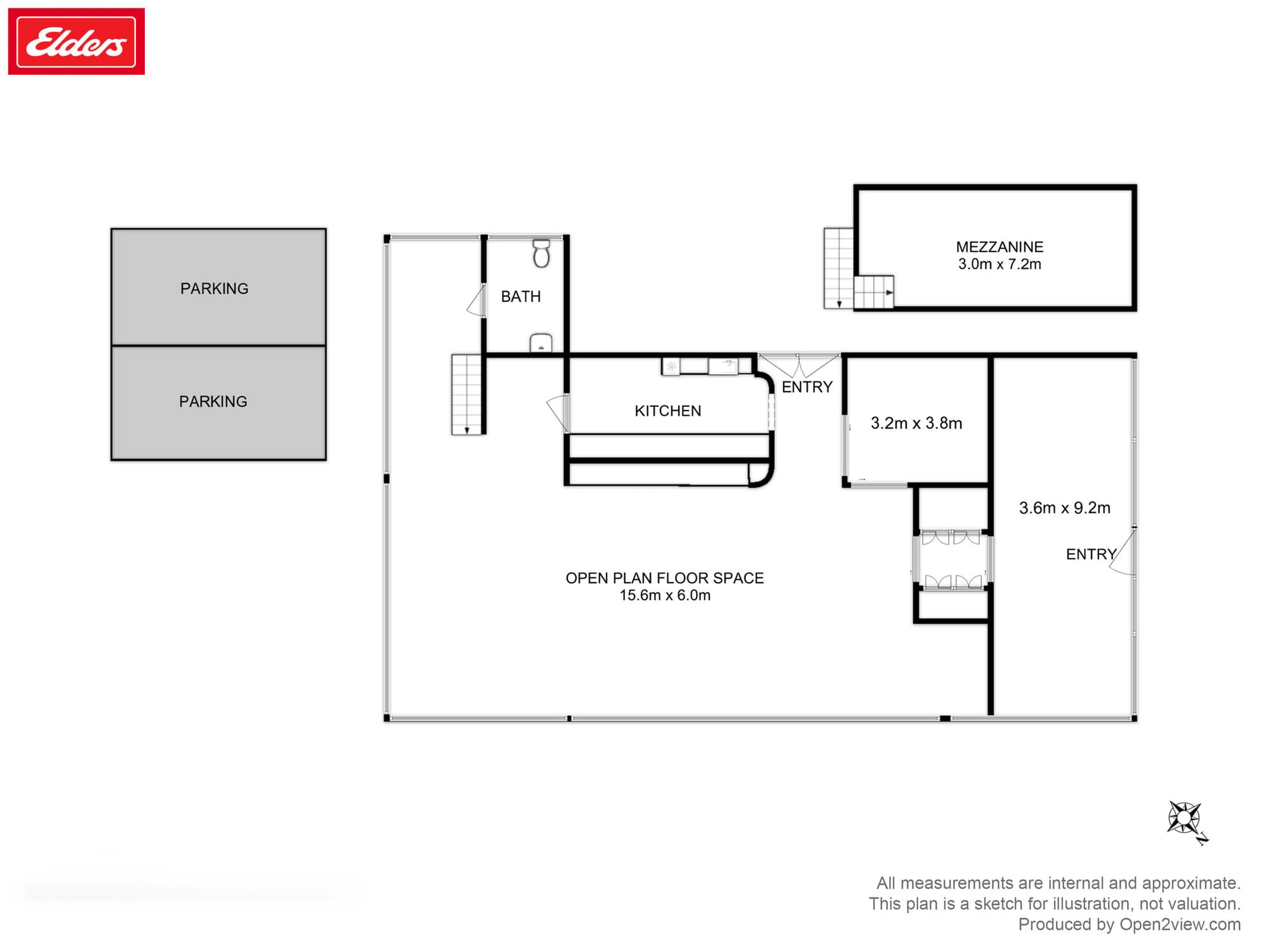
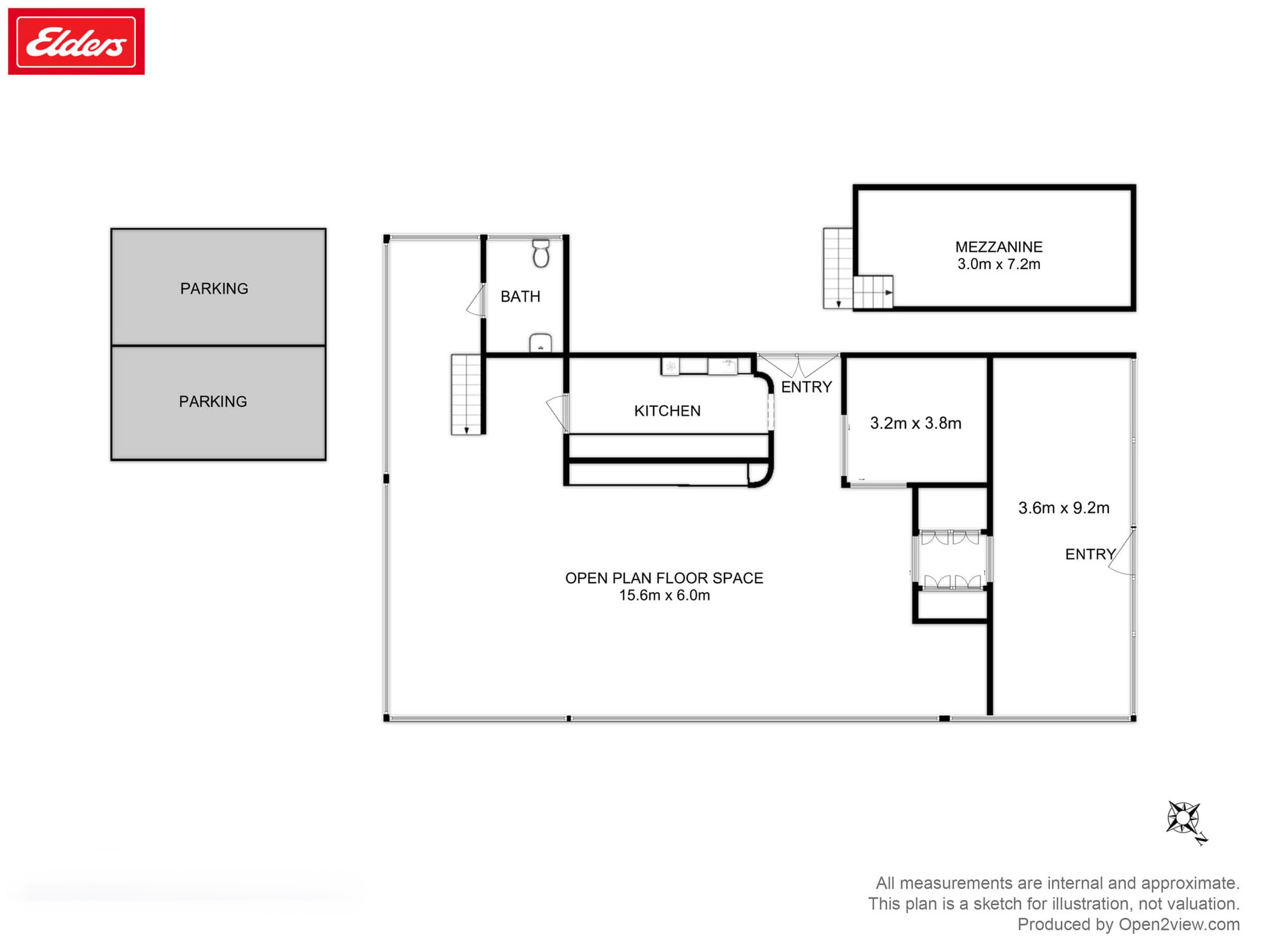
Elders Commercial is pleased to present the Ground Floor, 152 Macquarie Street, Hobart, a high-exposure ground floor strata titled commercial unit for sale on a vacant possession basis and ready for immediate occupation.

The 210 sqm* tenancy features a quality fit-out, fully air-conditioned, a practical open-plan layout and two secure on-site car parks, a rare advantage in the CBD. 'Central Business' zoning supports a wide range of uses, offering incoming occupiers and investors maximum flexibility from day one. In a market starved of quality CBD stock, a high-exposure ground floor position on Macquarie Street with vacant possession is as good as it gets.

Key property highlights include:
• High-exposure ground floor position on Macquarie Street, one of Hobart's busiest arterial roads with 30,000+* vehicles passing daily.
• Modern 210 sqm* commercial tenancy with quality fit-out in place, ready for immediate occupation.
• Offered with vacant possession, no lease constraints, maximum flexibility for owner-occupiers and investors alike.
• Two secure on-site car parks, a rare and highly sought-after advantage in the Hobart CBD.
• Surrounded by professional services firms, Government agencies and major hotels generating consistent, high-quality foot traffic throughout the business day.
• Flexible 'Central Business' zoning supporting a wide range of retail, office and service-based uses^.
• Strategically located with close proximity to Hobart’s city centre, the Parliamentary precinct and Salamanca Place.

The property is offered for sale by Expressions of Interest closing Thursday, 14th May 2026 at 4 pm (AEST).

*Approximate
^STCA

Features

General Features

  • Commercial Type: Offices
  • Building Area: 210sqm
  • Zoning: Central Business
  • Car Spaces: 2

Can I afford Ground / 152 Macquarie Street?

Whether you’re a first-time buyer, looking for your next home, or considering upgrading or downgrading, Elders Finance can unlock the doors to the right finance option for you and get you into the home of your dreams.

Calculators

Elders Real Estate Hobart

Enquire about Ground/152 Macquarie Street, Hobart, TAS, 7000

Property guides and resources

Q1 2026 Property Market Review: Where Australia Stands and What Comes Next

As the first quarter of 2026 wraps up, the Australian property market…
Read more

Why the Market Reawakens After Easter

Every year, the Australian property market seems to follow a familiar rhythm.…
Read more

Elders Real Estate Celebrates a Record-Breaking Awards Season

The 2025 Elders Real Estate Annual Awards delivered a powerful snapshot of…
Read more