fbpx Skip to content

Property / 18 Hull Street

Glenorchy TAS 7010

Contact Agent

Fully leased industrial asset with attractive passing income

Elders Commercial is pleased to present for sale 18 Hull Street, Glenorchy – an exceptional industrial investment opportunity positioned within Hobart’s premier industrial precinct.

Located just 7.5 kilometres* north of the Hobart CBD with outstanding connectivity to the Brooker Highway and Main Road, this versatile dual-tenancy asset offers modern improvements, strong lease covenants, and immediate access to major infrastructure, making it a strategic acquisition for the astute investor.

Key Highlights:
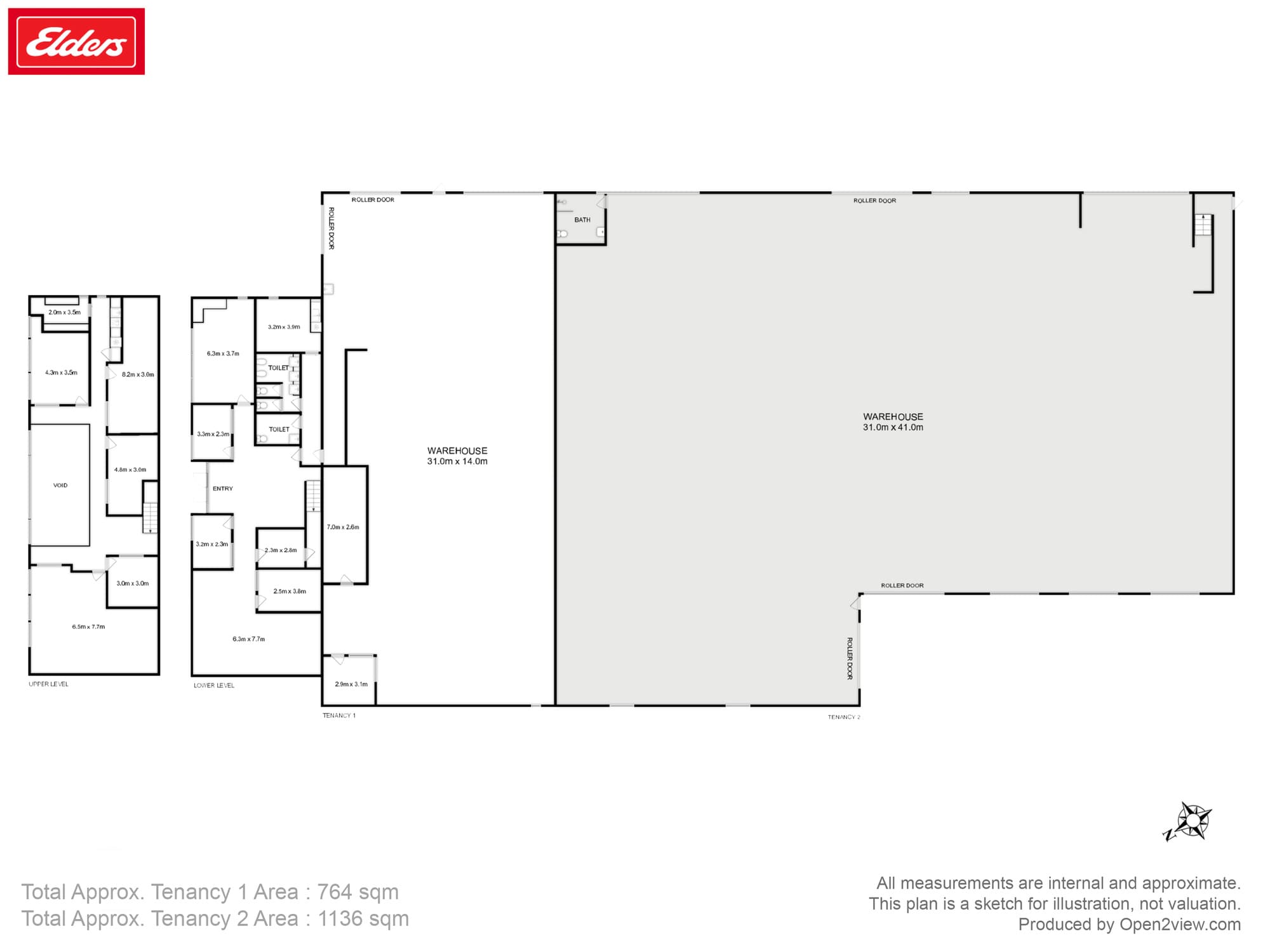
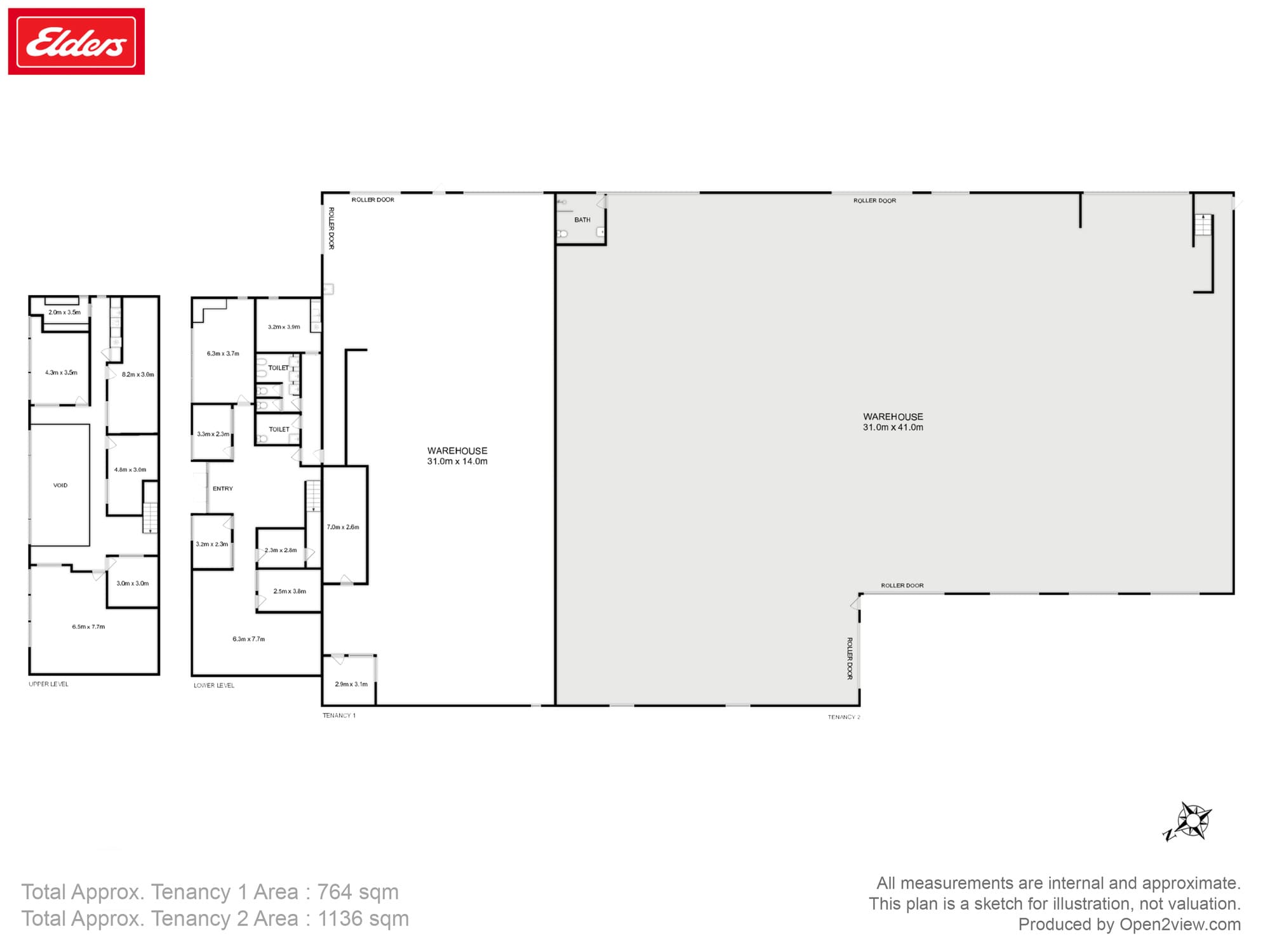
• Building Area of 1,900 sqm*
• Regular shaped land area of 3,055 sqm*
• Modern corporate office/showroom fronting Hull Street
• Conveniently shaped warehouse with multiple access points
• Fully leased to experienced local operators CP Group and King Trailers
• Excellent vehicle access and on-site parking
• Net annual income of $250,039 plus GST**

The property is For Sale by Expressions of Interest, closing Thursday 13th November 2025.

For further information or to arrange an inspection, please contact George Burbury or Liam Coyle.

*Approximate
**Before owner outgoings

Features

General Features

  • Land Area: 3,055sqm
  • Commercial Type: Industrial/Warehouse
  • Building Area: 1,900sqm
  • Zoning: Light Industrial

Can I afford Property / 18 Hull Street?

Whether you’re a first-time buyer, looking for your next home, or considering upgrading or downgrading, Elders Finance can unlock the doors to the right finance option for you and get you into the home of your dreams.

Calculators

Elders Real Estate Hobart

Enquire about Property/18 Hull Street, Glenorchy, TAS, 7010

Property guides and resources

Simple Ways to Refresh Your Home for the Cooler Months

There’s something about this time of year that invites a reset. After…
Read more

Regional vs Capital: Where Property Returns Are Stronger in 2026

It’s no secret that the Australian property market is no longer moving…
Read more

Q1 2026 Property Market Review: Where Australia Stands and What Comes Next

As the first quarter of 2026 wraps up, the Australian property market…
Read more