fbpx Skip to content

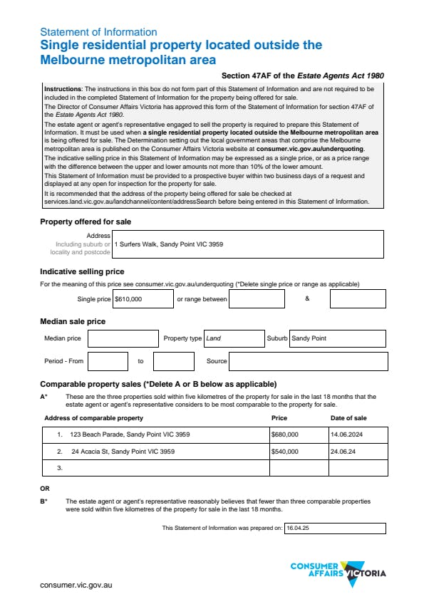
1 Surfers Walk

Sandy Point VIC 3959

$610,000

Vacant Block in Prime Location

"New Price $610,000"

Stunning vacant block of land in the coastal beachside town of Sandy Point, Victoria, Australia offers an incredible opportunity for those seeking to create their dream home or a perfect beachside holiday retreat. Situated in a prime location directly across from the beach, this blank canvas allows the new owner to design a property that maximizes the stunning natural surroundings.

Once on the sand, you can enjoy unobstructed ocean views, with the rolling waves and a spectacular view of the famous Wilson Promontory, renowned for its breathtaking landscapes, wildlife, and pristine environment. Whether you envision a modern coastal home, a luxurious holiday escape, or a peaceful retreat, this land provides endless potential.

Sandy Point is a peaceful and sought-after destination, known for its relaxed atmosphere, outdoor activities, and proximity to natural wonders. The location is ideal for those who appreciate the beauty of coastal living, offering the perfect balance of seclusion and convenience. Don't miss this rare chance to own a piece of paradise and craft your ideal beachside sanctuary in one of Victoria's most desirable coastal regions.

Local Destinations

Shallow Inlet 20 minutes

Tidal River 45 minutes

Foster 23 minutes

For further information or to inspect the property, please contact Ben Townsend on 0400 594 487.

For a Due Diligence Checklist go to: consumer.vic.gov.au/duediligencechecklist

Statement of Information

Features

General Features

  • Land Size: 549sqm

Can I afford 1 Surfers Walk?

Whether you’re a first-time buyer, looking for your next home, or considering upgrading or downgrading, Elders Finance can unlock the doors to the right finance option for you and get you into the home of your dreams.

Calculators

Elders Real Estate Leongatha

Enquire about 1 Surfers Walk, Sandy Point, VIC, 3959

Property guides and resources

Finding a Pet Friendly Rental in 2026: What Renters Need to Know

For many Australians, pets are no longer simply animals that live at…
Read more

The 2026 Budget and Regional Commercial Property: Where The Real Shift Lands

The 2026 Federal Budget has been read, fairly, as a residential housing…
Read more

Federal Budget 2026–27: What It Means for Property Owners, Renters and Investors

The 2026–27 Federal Budget introduces a range of changes to Australia’s property…
Read more