fbpx Skip to content

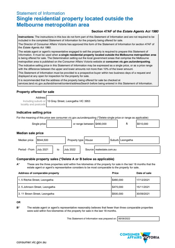
10 Gray Street

Leongatha VIC 3953

  • 3 Bed
  • 1 Bath
  • 3 Parks
$480,000

Affordable Home in Ideal Location

A great opportunity exists to purchase a neat and well-kept home located just a short stroll from the main street. This property would be ideal for a first home buyer, investor or great for a downsizer.

Features of this property include:
- 3 bedrooms, 1 bathroom
- Kitchen includes electric stove, dishwasher plus good bench & cupboard space
- Open plan living area
- 2 x split system reverse cycles plus a wood heater
- 3-bay lock-up shed with power, water and concrete floor
- 2.8kw solar system
- Level 608m2 block
- Low maintenance backyard includes lawn and raised garden beds

Whether you're looking at this property as an investment or to live in yourself, you can't beat this location. For more information and to arrange an inspection contact Katrina Griggs on 0428 571 083 or Don Olden on 0417 805 312.

For a Due Diligence Checklist go to: consumer.vic.gov.au/duediligencechecklist

Statement of Information

Features

General Features

  • Property Type: House
  • Bedrooms: 3
  • Bathrooms: 1
  • Land Size: 608sqm

Indoor Features

  • Toilets: 1

Outdoor Features

  • Garage Spaces: 2
  • Carports: 1

Can I afford 10 Gray Street?

Whether you’re a first-time buyer, looking for your next home, or considering upgrading or downgrading, Elders Finance can unlock the doors to the right finance option for you and get you into the home of your dreams.

Calculators

Elders Real Estate Leongatha

Enquire about 10 Gray Street, Leongatha, VIC, 3953

Property guides and resources

Simple Ways to Refresh Your Home for the Cooler Months

There’s something about this time of year that invites a reset. After…
Read more

Regional vs Capital: Where Property Returns Are Stronger in 2026

It’s no secret that the Australian property market is no longer moving…
Read more

Q1 2026 Property Market Review: Where Australia Stands and What Comes Next

As the first quarter of 2026 wraps up, the Australian property market…
Read more