fbpx Skip to content

978 Ridgley Highway

Ridgley TAS 7321

  • 4 Bed
  • 2 Bath
  • 5 Parks
Offers Over $675,000
Next open time
30th May 2026 (11:30 am - 12:00 pm)
Enquire now

Beautiful Family Home Offering Space, Style & Comfort

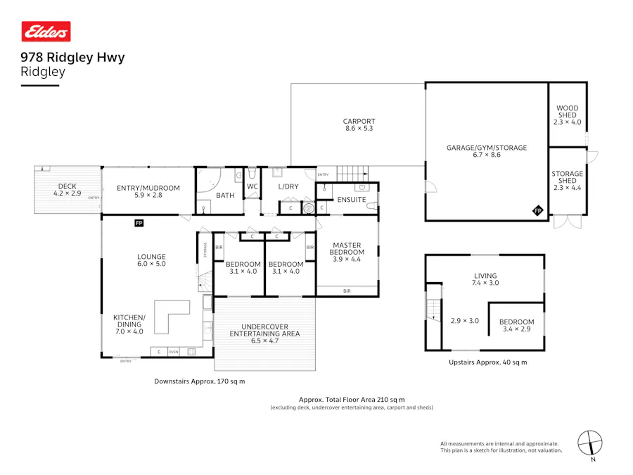
Perfectly positioned in the heart of the popular township of Ridgley stands this immaculately presented 4 Bedroom, 2 Bathroom home that will deliver the best of relaxed living with all the space and comfort a modern family needs.

Set on a near level approx 873m2 block this 1987 built brick home is thoughtfully designed across 2 levels with access via a large enclosed entry into a fantastic open planned living area that includes a brilliant kitchen with excellent appliances, dining area space and restful family room complemented with wood heating.

The spacious master bedroom features a private en- suite and great built-ins with large windows framing the surrounding countryside.
Two additional bedrooms also have built -in wardrobes with the lovely main bathroom and large laundry opposite. Upstairs is the perfect kids retreat, second living room or office plus the 4th bedroom.

For those needing room for vehicles, hobbies, or storage this property is perfect for tradies, tinkerers or for setting up a home gym plus a private undercover entertaining deck where where family and friends can relax while enjoying a BBQ . The block itself is low maintenances, securely fenced, offering lots of space for children, pets or future landscaping potential.

Being only a short walk to popular Ridgley Primary School, local upmarket and service station this property is ready to welcome you home.

DISCLAIMER: While Elders Real Estate Burnie has taken every care to verify the accuracy of the details in this advertisement, we cannot guarantee its correctness. Prospective buyers or tenants need to take such action as is necessary, to satisfy themselves of any pertinent matters

Features

General Features

  • Property Type: House
  • Bedrooms: 4
  • Bathrooms: 2
  • Building Size: 210sqm
  • Land Size: 873sqm

Indoor Features

  • Toilets: 2

Outdoor Features

  • Garage Spaces: 2
  • Open Car Spaces: 2
  • Carports: 1

Can I afford 978 Ridgley Highway?

Whether you’re a first-time buyer, looking for your next home, or considering upgrading or downgrading, Elders Finance can unlock the doors to the right finance option for you and get you into the home of your dreams.

Calculators

Elders Real Estate Burnie

Enquire about 978 Ridgley Highway, Ridgley, TAS, 7321

Property guides and resources

Albury/Wodonga Office: Local Knowledge Driving National Recognition

The recent Elders Real Estate Annual Awards have highlighted a network continuing…
Read more

Finding a Pet Friendly Rental in 2026: What Renters Need to Know

For many Australians, pets are no longer simply animals that live at…
Read more

The 2026 Budget and Regional Commercial Property: Where The Real Shift Lands

The 2026 Federal Budget has been read, fairly, as a residential housing…
Read more