fbpx Skip to content

831 Blackfellows Creek Road, Kuitpo Colony, SA, 5172

Kuitpo Colony SA 5172

  • 30 Bed
  • 16 Bath
$3.5M to $4.2M
Enquire now

A Rare Investment with Extraordinary Potential

Opportunities like this are almost impossible to replicate. - Totaling 90+ beds and 16 bathrooms across 105.6acres.

With current rental income in excess of $200,000 per annum and spanning 42.74 hectares (approximately 105.6 acres), this is a blue-chip rural investment with large scale, infrastructure, and future upside rarely seen in a single holding.

Set well back from the road and framed by gently undulating hills and scattered gum trees, the land itself is both picturesque and productive. Five fenced paddocks provide solid stock carrying capacity, supported by an average annual rainfall of approximately 760mm. Two dams service the property, including one substantial water body that draws abundant birdlife and creates a striking natural centrepiece.

Water security has been a major focus, with significant recent investment in infrastructure. A new bore has been installed along with a desalination plant, further strengthening the property's long-term sustainability. In addition, a brand-new 280,000-litre rainwater tank has just been installed on the community side of the property, complementing the existing extensive rainwater storage, artesian supply to underground and holding tanks, and household tanks across the estate.

The property is thoughtfully divided into three distinct zones, each with its own purpose and potential.

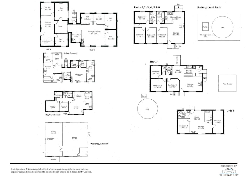
Zone 1 – Kuitpo Community
A village-style enclave comprising 12 homes, all currently tenanted, alongside extensive shedding and shared community facilities. Originally established as a United Communities refuge project, the site has undergone considerable upgrades in recent years, including high-capacity water tanks and improved infrastructure. An enclosed basketball court and generous communal areas contribute to a self-contained rural community atmosphere.

Zone 2 – Farmhouses & Original Kuitpo Valley Camp Site.
Two additional small-acreage rental farm homes are located between the community and colony sites, both tenanted by long-term occupants, together with the site of the original Kuitpo Valley Camp.

Between Zones 1 and 2, the property currently generates in excess of $200,000 per annum, delivering strong immediate income while preserving long-term flexibility.

Zone 3 – Kuitpo Colony
Currently vacant and ready for customisation, this precinct consists of seven substantial buildings. Dorm 1 and Dorm 2 have been upgraded with modern wet facilities and spacious central living areas, and each has 12 single bunk rooms with wardrobes and one large double room. Dorm rooms total 52 with the capacity to accommodate 104 people, spread across 4 buildings. A substantial hall with a stage and breakout spaces, and a vast commercial kitchen & dining hall, provides an ideal setting for gatherings, conferences, or events. Additional improvements include a caretaker's residence, large powered sheds (approximately 20m x 30m and 8m x 30m), office facilities, and a significant below-ground bunker/cellar for storage and further development potential (subject to council consent).

The scope here is remarkable. Conference centre, school camp, wellness retreat, mental health sanctuary, creative arts hub, co-operative living venture, or eco-tourism destination – the groundwork has already been laid. The combination of established accommodation, infrastructure and open rural land allows the next owner to shape the future direction with confidence.

This is more than a property; it is a significant rural estate with income, scale and imagination built in. For those seeking something genuinely different with real substance behind it, this is an opportunity to create something exceptional.

Contact us to arrange a private inspection and explore what this remarkable holding could become.



Specifications:
CT | 6183/ 307
Council | Alexandrina
Zoning | PRuL - Productive Rural Landscape
Built | Zone 1 Zone 3 1971
Land | 42.04ha (CALCULATED)
Frontage | 800m approx
Council Rates / $4,854.30 pa

Tenancy details can be provided upon request.



Disclaimer: We have in preparing this information used our best endeavours to ensure that the information contained herein is true and accurate but accept no responsibility and disclaim all liability in respect of any errors, omissions, inaccuracies or misstatements that may occur. Prospective purchasers should make their own enquiries to verify the information contained herein. RLA 62833

Features

General Features

  • Bedrooms: 30
  • Bathrooms: 16
  • Land Area: 42.7hect (approx)
  • Air Conditioning

Homestead

  • Bedrooms: 30
  • Bathrooms: 16

Can I afford 831 Blackfellows Creek Road, Kuitpo Colony, SA, 5172?

Whether you’re a first-time buyer, looking for your next home, or considering upgrading or downgrading, Elders Finance can unlock the doors to the right finance option for you and get you into the home of your dreams.

Calculators

Elders Real Estate Normanville

Enquire about 831 Blackfellows Creek Road, Kuitpo Colony, SA, 5172

Property guides and resources

Finding a Pet Friendly Rental in 2026: What Renters Need to Know

For many Australians, pets are no longer simply animals that live at…
Read more

The 2026 Budget and Regional Commercial Property: Where The Real Shift Lands

The 2026 Federal Budget has been read, fairly, as a residential housing…
Read more

Federal Budget 2026–27: What It Means for Property Owners, Renters and Investors

The 2026–27 Federal Budget introduces a range of changes to Australia’s property…
Read more