fbpx Skip to content

Ground Rear / 367-379 Elizabeth Street

North Hobart TAS 7000

  • 2 Parks
Contact agent

Office Opportunity in Key Business Precinct

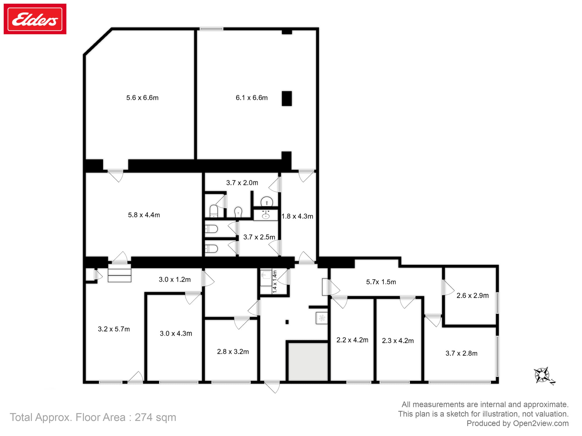
Elders Commercial is pleased to present for lease the Ground Rear tenancy at 367 Elizabeth Street, North Hobart, positioned within the iconic State Cinema Complex.

Located in one of Hobart’s most sought-after business precincts, this space offers an exceptional opportunity to secure quality office accommodation surrounded by a diverse mix of leading professional services, retail, and hospitality operators.

The tenancy comprises 237m²* of well-appointed office space, complete with kitchenette and internal amenities. In addition, the property benefits from two on-site car spaces and an additional 37m²* of storage space.

Key Features:
• 237m²* of professional office accommodation
• Kitchenette and internal amenities
• Two on-site car parks
• Prime North Hobart location with strong foot traffic

Available now. For further information or to arrange an inspection, please contact Elders Commercial.

*Approx.

Features

General Features

  • Commercial Type: Offices
  • Building Area: 237sqm
  • Zoning: General Business
  • Car Spaces: 2

Elders Real Estate Hobart

Enquire about Ground Rear/367-379 Elizabeth Street, North Hobart, TAS, 7000

Property guides and resources

Finding a Pet Friendly Rental in 2026: What Renters Need to Know

For many Australians, pets are no longer simply animals that live at…
Read more

The 2026 Budget and Regional Commercial Property: Where The Real Shift Lands

The 2026 Federal Budget has been read, fairly, as a residential housing…
Read more

Federal Budget 2026–27: What It Means for Property Owners, Renters and Investors

The 2026–27 Federal Budget introduces a range of changes to Australia’s property…
Read more