fbpx Skip to content

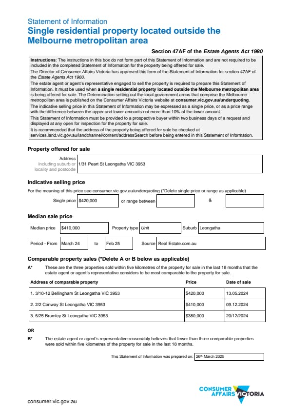
1/31 Peart Street

Leongatha VIC 3953

  • 2 Bed
  • 1 Bath
  • 2 Parks
Contact Agent

Appealing 2 Bedroom Unit in desirable location

Welcome to this easy-to maintain 2 bedroom unit, perfect for those seeking comfort and

convenience, with location being just a short, flat walk from the towns Main Street where you can enjoy easy access to a variety of shops, cafes and amenities.

Key features of the property include:

2 bedrooms with built in robes

Good size loungeroom, with street views

Kitchen / dining room with reverse cycle unit

Central bathroom with bath, walk in shower, separate toilet

Laundry includes linen cupboard

Single car garage with roller door & garden shed off the side

Private fenced courtyard, great low maintenance property

This property is perfect for first home buyers, downsizers, or investors.

For further information or to inspect the property, please contact Sharon Turton on 0447 604 796

For a Due Diligence Checklist go to: consumer.vic.gov.au/duediligencechecklist

Statement of Information

Features

General Features

  • Property Type: Unit
  • Bedrooms: 2
  • Bathrooms: 1
  • Building Size: 94sqm
  • Land Size: 150sqm

Indoor Features

  • Toilets: 1
  • Built In Wardrobe

Outdoor Features

  • Open Car Spaces: 2
  • Secure Parking
  • Courtyard

Other Features

  • Close to Shops
  • Roller Door Access

Can I afford 1/31 Peart Street?

Whether you’re a first-time buyer, looking for your next home, or considering upgrading or downgrading, Elders Finance can unlock the doors to the right finance option for you and get you into the home of your dreams.

Calculators

Elders Real Estate

Enquire about 1/31 Peart Street, Leongatha, VIC, 3953

Property guides and resources

Spaces That Bring the Family Together

There’s something special about the spaces where life naturally gathers. The kitchen…
Read more

Simple Ways to Refresh Your Home for the Cooler Months

There’s something about this time of year that invites a reset. After…
Read more

Regional vs Capital: Where Property Returns Are Stronger in 2026

It’s no secret that the Australian property market is no longer moving…
Read more